waecE-LEARNING
Home
Technical
Mathematics
Languages
Science
Social Science
Art
Literature Arabic Islamic Studies C.R.K HistoryMusicVisual Art Clothing/Textile Home Management Shorthand
 
Technical Drawing Paper 2, May/June 2009  
Questions: 1 2 3 4 5 6 7 8 9 10 Section B Main
General Comments
Weakness/Remedies
Strength






SECTION B

BUILDING DRAWING (OPTIONAL)

[70 Marks]

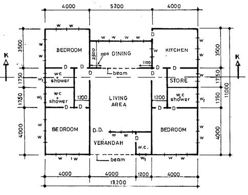
  1. The figure below shows the sketch plan of a three bedroom bungalow.  Study     the given specifications and answer the questions that follow.

SPECIFICATIONS

Foundation:   675 x 225 concrete strip foundation on 15 blinding at 1000 below ground
level.

Floor:              250 hardcore; 150 concrete slab; 18 cement/sand floor screed.  Living and
dinning areas are 150 below the floor level of other areas of the building.

Walls:              All walls 225 with 13 mortar rendering.

Doors:             All doors flush in 150 x 50 timber frame;
                        D – 2100 x 900 x 38.

Windows:       All sliding glass in aluminium frame;
                        W1 800 x 500;
                        W 2000 x 1200.

Beam/Lintel:  225 x 225 reinforced concrete;
                        2100 above floor level.

Roof:               25 bituminous felt roof finish on 150 reinforced concrete roof.
                        Eaves projection 250.

  1. Draw to a scale of 1:100, the

 

    1. plan;
    2. left side elevation.
  1. Draw to a scale of 1:50, a section on KK.
_____________________________________________________________________________________________________
Observation

This is a practical question on building drawing and it tested the ability of the candidates in the following areas:

(i)         using good line works;
(ii)        drawing to scales;
(iii)       using symbols or conventions;
(iv)       using dimensions required.

In addition to the above, marks are awarded for neat and good presentation of works.  The required solutions are shown below.

Most candidates failed to use suitable lines.  Some did not draw to scale while poor presentation was the bane of some.

Powered by Sidmach Technologies(Nigeria) Limited .
Copyright © 2012 The West African Examinations Council. All rights reserved.