waecE-LEARNING
Home
Technical
Mathematics
Languages
Science
Social Science
Art
Literature Arabic Islamic Studies C.R.K HistoryMusicVisual Art Clothing/Textile Home Management Shorthand
 
Technical Drawing Paper 2, Nov/Dec. 2009  
Questions: 1 2 3 4 5 6 7 8 9 10 Section B 1 2 Main
General Comments
Weakness/Remedies
Strength



Question 5

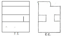
A block is shown in the figure above. Complete the authographic views below. (No hidden details are required).

 

_____________________________________________________________________________________________________
Observation

Candidates were expected to complete three views of the block shown in pictorial form. Majority of the candidates performed very well in this question because of the pictorial views of the block that was provided. The solution is shown below.

Powered by Sidmach Technologies(Nigeria) Limited .
Copyright © 2012 The West African Examinations Council. All rights reserved.