Question 2
The following materials are supplied:
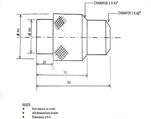
(a) one piece free cutting mild steel rod, Æ50mm x 85mm;
(b) one cotton bag 120mm x 70mm to enclose the finished work;
(c) two tie-on labels.
The diagram below shows the detailed view of a machine part. Produce the part using the material supplied.

Observation
One candidate attempted this question with good performance.