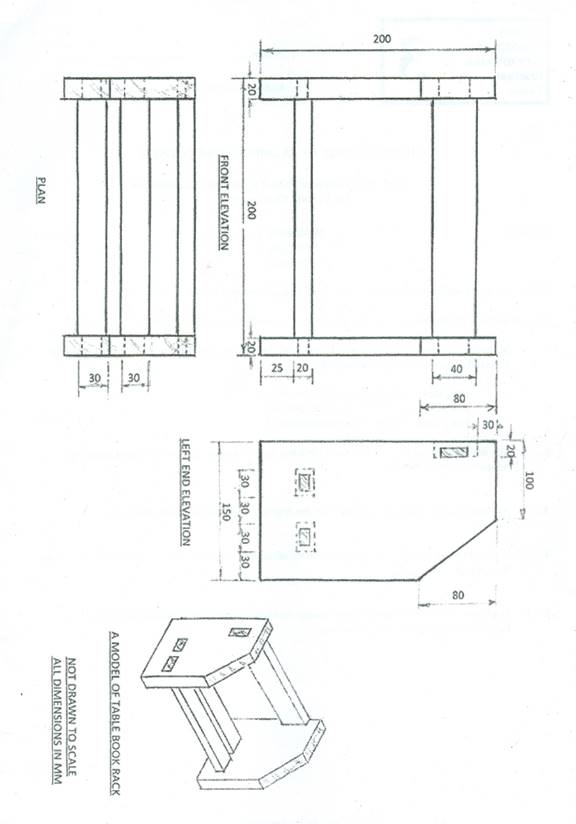
Question 1
- Make the test piece shown on the next page, using the timber which has been planed to the following sizes:
one piece − 210 x 40 x 20 hardwood;
two pieces − 210 x 150 x 20 hardwood;
two pieces − 210 x 30 x 20 hardwood.
(all dimensions are in millimeters)
- You may use any of the ordinary hand tools but the use of glue, glass-paper, files, rasps and scrapers are not allowed.
- Any dimension which is omitted from the drawing is left to your own discretion.
- If you make any mistake, work as near to the drawing as possible.
Additional materials will not be supplied.
- Print your name and index number clearly on each piece of wood and assemble your work before handing it over to the Supervisor.

Observation
This is a practical question which requires the candidates to construct an article. The joints used in constructing the article make up the questions.
The assessment of the article is divided into four areas and marks were awarded.
Candidates’ performance in each stage is stated as follows:
- Bare faced mortise and tenon joint: Most candidates produced the mortices but the tenons were not properly constructed. The edge shoulders were not constructed by most of the candidates.
(2) Mortice and tenon joint: Most of the candidates made the mortises but failed to produce shoulders on the rail carrying the tenure.
(3) Shaping – All the candidates were able to cut the shape but some did not plane the bevelled shapes.
(4) Finishing: Some of the candidates were able to finish the article as expected.