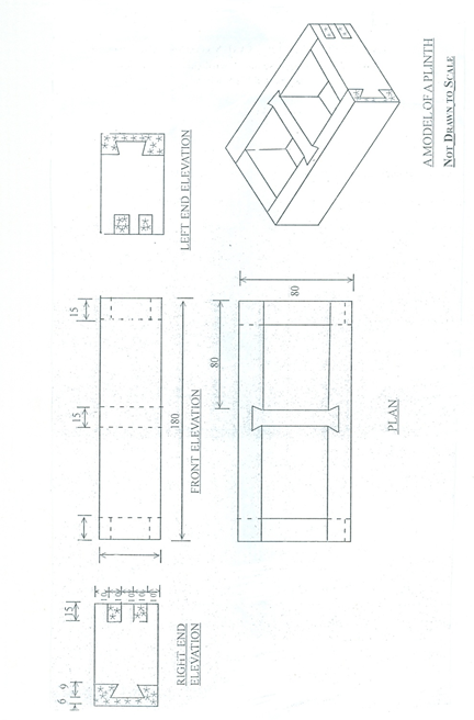
Question 1
Make the test piece show on page 2, using the timber which has been planed to the following sizes (all dimensions are in milimetres):
one piece 70 x 50 x 15;
two piece 90 x 50 x 15;
two piece 90 x 50 x 15.
(2) You may use any of the ordinary hand tools but the use of glue, glass-paper, files, rasps and scrapers is not allowed.
(3) Any dimensions which are omitted from the drawing are left to your own discretion.
(4) If you make any mistakes work as near to the drawing as possible. Additional materials not be supplied.
(5) Print your name and index number clearly on each piece of wood and assemble your work before handing it to the Supervisor.

Observation
This question is a practical project requiring the use of some certain joints to construct the project. In this exercise the requirements are divided two four parts which are:
- Lapped dovetail joint
Many of the candidates did not provide the lap required in the joint
2.Finger joint
Majority of the candidates attempted and performed well in this area of the question.
3.Through dovetail housing joint
Pin was not properly cut by many of the candidates also the trenches to receive the fins were poorly made
4. Finishing
Majority of the candidates did not get to this level.